Главная страница / Каталог проектов / 160-004-П
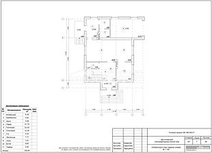
| Общая площадь дома | 159,14 м2 |
| Габариты застройки | 11,3 x 13,8 м |
| Количество этажей | 2 |
| Цокольный этаж: | нет |
| Гараж: | 1 машина |
| Сейсмостойкость: | до 7 баллов |
| Кровля: | гибкая черепица |
| Отделка фасада: | штукатурка |
| Отделка цоколя: | камень |
| Перекрытие: | сборная ж/б плита |
| Фундамент: | свайный |
| Материал стен: | блок 300 |
| Высота этажа: | 2,7 м |
| Состав помещений, м2 | |
| Котельная | 6,38 |
| Тамбур | 3,6 |
| Сауна | 3,06 |
| Гараж | 21,75 |
| Гостиная | 22,55 |
| Столовая | 12,3 |
| Сан. узел | 2,32 |
| Лестница | 7,77 |
| Холл | 7,81 |
| Кухня | 9,6 |
| Тамбур | 3,5 |
| Итого: | 100,64 |
| Высота этажа: | 3 м |
| Состав помещений, м2 | |
| Жилая комната | 13,68 |
| Жилая комната | 16,14 |
| Сан. узел | 3,45 |
| Холл | 6,76 |
| Жилая комната | 12,22 |
| Жилая комната | 6,25 |
| Итого: | 58,50 |
Проектная документация может отличаться от представленных эскизов на сайте, продавец оставляет за собой право вносить любые изменения в проектную документацию.



























































В состав любого готового проекта на нашем сайте входят два раздела: АР (Архитектурные решения) и КР (Конструктивные решения) иногда данные разделы объединяют в один: АС (Архитектурно-строительные решения).
Состав АР (Архитектурные решения):
Мы предлагаем:
Вы можете выбрать материал стен: