Главная страница / Каталог проектов / 190-005-П
| Общая площадь дома | 197,79 м2 |
| Габариты застройки | 12 x 14,7 м |
| Количество этажей | 2 |
| Цокольный этаж: | нет |
| Гараж: | 1 машина |
| Сейсмостойкость: | до 7 баллов |
| Кровля: | гибкая черепица |
| Отделка фасада: | облицовочный кирпич |
| Отделка цоколя: | камень |
| Перекрытие: | сборная ж/б плита |
| Фундамент: | свайный |
| Материал стен: | утеплитель |
| Высота этажа: | 2,8 м |
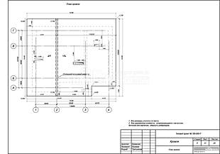
| Состав помещений, м2 | |
| Гостиная | 21,12 |
| Жилая комната | 13,23 |
| Холл | 15,8 |
| Сан. узел | 3,4 |
| Шкаф встроенный | 1,04 |
| Кухня-столовая | 18,4 |
| Тамбур | 3 |
| Котельная | 5,98 |
| Гараж | 26 |
| Тамбур | 3,18 |
| Сауна | 7,13 |
| Итого: | 118,28 |
| Высота этажа: | 2 - 3,4 м |
| Состав помещений, м2 | |
| Спальня | 18,3 |
| Спальня | 13,23 |
| Шкаф встроенный | 1,4 |
| Холл | 8,45 |
| Лестница | 6,8 |
| Сан. узел | 3,1 |
| Спальня | 17,92 |
| Гардеробная | 2,71 |
| Ванная | 7,6 |
| Итого: | 79,51 |
Проектная документация может отличаться от представленных эскизов на сайте, продавец оставляет за собой право вносить любые изменения в проектную документацию.





















































В состав любого готового проекта на нашем сайте входят два раздела: АР (Архитектурные решения) и КР (Конструктивные решения) иногда данные разделы объединяют в один: АС (Архитектурно-строительные решения).
Состав АР (Архитектурные решения):